Prodej bytu 1+kk
Žacléř
Info v RK
| Kód nabídky | N66651 |
|---|---|
| Dispozice bytu | 1+kk |
| Druh stavby | Cihlová |
| Celková plocha | 37 m2 |
| Užitná plocha | 37 m2 |
| Stav objektu | Velmi dobrý |
| Typ domu | Patrový |
| Číslo podlaží | 2 |
| Počet podlaží | 3 |
| Vlastnictví | Osobní |
| Balkon | 7 m2 |
| Sklep | 2.3 m2 |
| K dispozici od | 11.3.2026 |
| PENB: Náročnost budovy | G - průkaz nedodán |
Popis
Hledáte místo, kde ranní kávu vypijete s výhledem na zasněžené svahy a hned poté nasadíte lyže přímo u domu? Tento precizně udržovaný apartmán v žádané lokalitě Žacléř – Prkenný Důl je přesně pro vás.
Hlavní přednosti a lyžařský ráj na dosah:
• Ski-in/Ski-out přímo v místě: Bydlíte přímo u sjezdovek areálů Bret a Arakis, které jsou v docházkové vzdálenosti od domu.
• Největší resort v ČR za rohem: Pokud zatoužíte po nejdelších sjezdovkách v Česku, do Janských Lázní (SkiResort Černá hora) dojedete autem za pouhých 20–25 minut (cca 18 km). Máte tak na výběr mezi klidem v Prkenném Dole a špičkovým zázemím největšího skiareálu v zemi.
• Unikátní parkování: K bytu náleží vlastní parkovací stání přímo u budovy – maximální komfort i v zimních měsících.
• Budoucí zhodnocení: Probíhá dostavba dálnice D11 (Praha – Trutnov – Polsko) s plánovaným dokončením cca 2027–2028, která výrazně zlepší dostupnost oblasti a zvýší hodnotu nemovitosti.
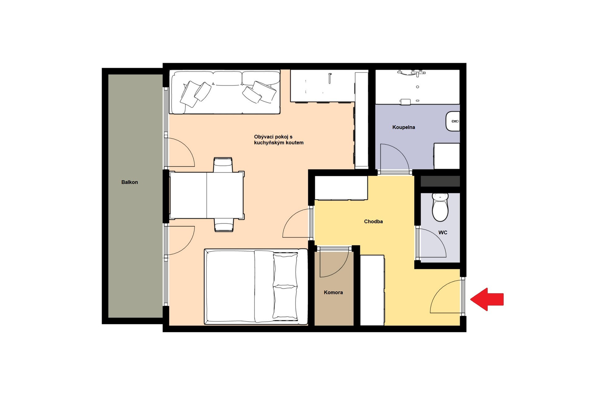
Dispozice a parametry (celkem 36,8 m² + terasa 7 m²):
Byt se nachází v moderním apartmánovém domě (rok výstavby 2001) a je ve vynikajícím stavu:
• Obývací pokoj s kuchyňským koutem (22,14 m²): Kuchyňská linka se sklokeramickou deskou, dřezem, lednicí, mrazákem a mikrovlnkou.
• Slunná terasa (7 m²): Ideální pro letní posezení nebo zimní relaxaci s výhledem na přírodu.
• Koupelna (4,37 m²): Vybavena vanou, otopným žebříkem a prostorem pro pračku.
• Praktické zázemí: Samostatné WC (1,44 m²), chodba se dvěma vestavěnými skříněmi (7,32 m²) a komora (1,53 m²) s elektrickým kotlem a bojlerem Dražice.
• Příslušenství: K bytu náleží sklepní kóje (2,3 m²) pro bezpečné uložení lyží a kol.
Lokalita a využití
Prkenný Důl je vstupní branou do východních Krkonoš, nabízející klidnější atmosféru, tenisové kurty i wellness v okolí. Apartmán je ideální jako „druhý domov“ i jako investice s vysokým potenciálem pro celoroční krátkodobé pronájmy.
Přijeďte se přesvědčit osobně!
Hlavní přednosti a lyžařský ráj na dosah:
• Ski-in/Ski-out přímo v místě: Bydlíte přímo u sjezdovek areálů Bret a Arakis, které jsou v docházkové vzdálenosti od domu.
• Největší resort v ČR za rohem: Pokud zatoužíte po nejdelších sjezdovkách v Česku, do Janských Lázní (SkiResort Černá hora) dojedete autem za pouhých 20–25 minut (cca 18 km). Máte tak na výběr mezi klidem v Prkenném Dole a špičkovým zázemím největšího skiareálu v zemi.
• Unikátní parkování: K bytu náleží vlastní parkovací stání přímo u budovy – maximální komfort i v zimních měsících.
• Budoucí zhodnocení: Probíhá dostavba dálnice D11 (Praha – Trutnov – Polsko) s plánovaným dokončením cca 2027–2028, která výrazně zlepší dostupnost oblasti a zvýší hodnotu nemovitosti.
Dispozice a parametry (celkem 36,8 m² + terasa 7 m²):
Byt se nachází v moderním apartmánovém domě (rok výstavby 2001) a je ve vynikajícím stavu:
• Obývací pokoj s kuchyňským koutem (22,14 m²): Kuchyňská linka se sklokeramickou deskou, dřezem, lednicí, mrazákem a mikrovlnkou.
• Slunná terasa (7 m²): Ideální pro letní posezení nebo zimní relaxaci s výhledem na přírodu.
• Koupelna (4,37 m²): Vybavena vanou, otopným žebříkem a prostorem pro pračku.
• Praktické zázemí: Samostatné WC (1,44 m²), chodba se dvěma vestavěnými skříněmi (7,32 m²) a komora (1,53 m²) s elektrickým kotlem a bojlerem Dražice.
• Příslušenství: K bytu náleží sklepní kóje (2,3 m²) pro bezpečné uložení lyží a kol.
Lokalita a využití
Prkenný Důl je vstupní branou do východních Krkonoš, nabízející klidnější atmosféru, tenisové kurty i wellness v okolí. Apartmán je ideální jako „druhý domov“ i jako investice s vysokým potenciálem pro celoroční krátkodobé pronájmy.
Přijeďte se přesvědčit osobně!
Lokalita
Žacléř