Pronájem bytu 4+kk
Praha 5 - Ostrovského
						32 000 Kč								
									za měsíc								
							
													
				+ 7.000,- Kč poplatky + elektřina
| Kód nabídky | N66452 | 
|---|---|
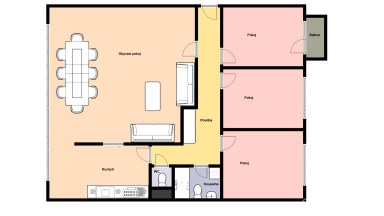
| Dispozice bytu | 4+kk | 
| Druh stavby | Cihlová | 
| Celková plocha | 110 m2 | 
| Užitná plocha | 107 m2 | 
| Stav objektu | Novostavba | 
| Typ domu | Patrový | 
| Číslo podlaží | 2 | 
| Počet podlaží | 5 | 
| Vlastnictví | Osobní | 
| Balkon | 3 m2 | 
| K dispozici od | 31.10.2025 | 
| Umístění objektu | Klidná část obce | 
| Popis vybavení | Kuchyňská linka, lednice, pračka, elektrická trouba, keramická varná deska, skříně, postele, stul se židlemi, sedačka,TV | 
| PENB: Náročnost budovy | C - Úsporná | 
Popis
						Toužíte po klidném a prostorném bydlení v oblíbené lokalitě Smíchova? Oceníte komfort moderní novostavby a vlastní parkovací místo? Tento byt je ideální volbou.
Krásný, tichý a slunný byt o dispozici 4+kk se nachází ve druhém nadzemním podlaží moderního rezidenčního domu v ulici Ostrovského. Nabízí praktické uspořádání, dostatek úložného prostoru a příjemnou atmosféru domova.
Dominantou bytu je prostorný obývací pokoj s plně vybavenou kuchyňskou linkou – nechybí myčka nádobí, elektrická trouba ani keramická varná deska. Z jednoho z pokojů je přímý vstup na balkon s orientací na východ. Byt je orientován na východ a západ, díky čemuž je krásně světlý po celý den.
Součástí nájmu je vnitřní parkovací stání, které vám zajistí pohodlí a bezpečné parkování.
V obytných místnostech jsou kvalitní třívrstvé dřevěné podlahy, v chodbě, koupelně a kuchyni je položena dlažba. Vytápění je centrální.
Lokalita nabízí veškerou občanskou vybavenost – v docházkové vzdálenosti jsou školy, školky, restaurace, kavárny, sportoviště i supermarket. Skvělá dopravní dostupnost – MHD pár minut chůze, rychlé napojení na pražský okruh i směr letiště.
Byt je k nastěhování ihned.
					
				Krásný, tichý a slunný byt o dispozici 4+kk se nachází ve druhém nadzemním podlaží moderního rezidenčního domu v ulici Ostrovského. Nabízí praktické uspořádání, dostatek úložného prostoru a příjemnou atmosféru domova.
Dominantou bytu je prostorný obývací pokoj s plně vybavenou kuchyňskou linkou – nechybí myčka nádobí, elektrická trouba ani keramická varná deska. Z jednoho z pokojů je přímý vstup na balkon s orientací na východ. Byt je orientován na východ a západ, díky čemuž je krásně světlý po celý den.
Součástí nájmu je vnitřní parkovací stání, které vám zajistí pohodlí a bezpečné parkování.
V obytných místnostech jsou kvalitní třívrstvé dřevěné podlahy, v chodbě, koupelně a kuchyni je položena dlažba. Vytápění je centrální.
Lokalita nabízí veškerou občanskou vybavenost – v docházkové vzdálenosti jsou školy, školky, restaurace, kavárny, sportoviště i supermarket. Skvělá dopravní dostupnost – MHD pár minut chůze, rychlé napojení na pražský okruh i směr letiště.
Byt je k nastěhování ihned.
Lokalita
Praha 5 - Ostrovského